Ein Projekt der

Startseite » Projekte » Am Horner Moor
Unbenannt-2

Am Horner Moor 16

Mehrfamilienhaus mit Doppelhauscharakter

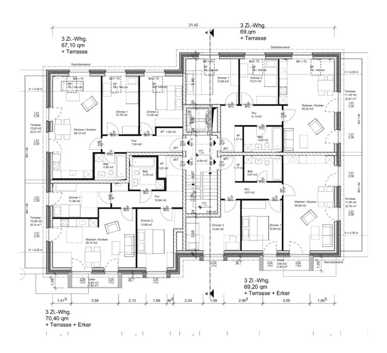
Bei der Planung des Mehrfamilienhauses „Am Horner Moor 16“ lag die Herausforderung darin, ein Gebäude zu entwickeln, das sowohl über eine wirtschaftliche Anzahl an Wohneinheiten verfügt, sich aber dennoch unauffällig in die durch Einfamilienhäuser geprägte Umgebung integriert. Durch eine leichte Diagonal-Verschiebung des Grundrisses gelang es, dem Gebäude die Wesenszüge eines Doppelhauses zu verleihen. Mit der Staffelung der dritten Etage wurde zudem die benachbarten Gebäudehöhen aufgegriffen.

Die Grundrisse sollten Merkmale aufweisen, die sowohl Singles als auch Familien ansprechen. Entstanden sind insgesamt 14 Wohneinheiten mit 1- bis 4-Zimmerwohnungen auf ca. 40 bis 86 m² Fläche. Die Aufteilung wurde so geschaffen, dass das Erdgeschoss über drei 1-Zimmerwohnungen sowie jeweils eine 2-, 3- und 4-Raumwohnung verfügt. Als Besonderheit des Architekturentwurfs erhielten zwei der kleineren Wohneinheiten im Erdgeschoss separate Wohnungseingänge, die sie von dem gemeinschaftlich genutzten Flur unabhängig machen.

Die 3- und 4-Zimmerwohnungen des Obergeschosses verfügen jeweils über einen Balkon, die darüberliegenden 3-Zimmerwohnungen im Staffelgeschoss sind zum Teil mit Loggia und Dachterrasse ausgestattet. Das Wohnhaus verfügt über einen Aufzug.

Die Lage

Der Stadtteil Horn mit seinen vielen Parkanlagen und Kleingärten zählt zu einem der grünsten Stadtteile Hamburgs. Geprägt durch gepflegte Backsteinsiedlungen mit großzügigen Hinterhöfen ist Horn ein eher ruhigerer, unauffälliger Stadtteil. Gerade junge Menschen zieht es seit einigen Jahren vermehrt in den Hamburger Osten. Sie schätzen insbesondere die günstigen Verkehrsanbindungen, durch die man in wenigen Minuten den Hamburger Hauptbahnhof erreicht. Das Wohngebiet rund um die St. Olaf Kirche, in dem sich auch das Mehrfamilienhaus „Am Horner Moor 16“ befindet, besticht dagegen durch seinen von Einfamilienhäusern und altem Baumbestand bestimmten dörflichen Charakter.

Die Ausstattung

Die Fertigstellung der Wohnungen beinhaltete die Komplettausstattung der Badezimmer inklusive der Duschtrennwände sowie vollwertige Küchenzeilen mit Elektroöfen und Cerankochfeldern. Als Bodenbeläge entschieden wir uns für hochwertige geölte Eichenparkettböden. Die Bäder erhielten zeitlose großformatige Wandkacheln sowie anthrazitfarbene Bodenfliesen.

Wirtschaftlich überzeugend, ökologisch in der Zeit​

Sowohl bei der Konstruktion als auch bei Wahl der Materialien legten wir großen Wert auf Wirtschaftlichkeit. Die Ziegel- und Holzverschalung sorgt für eine wertige Optik und ist darüber hinaus für ihre Materialbeständigkeit bekannt. Bei der Holzverschalung fiel unsere Wahl auf grau durchgefärbtes Holz, durch das ein dauerhaft gleichmäßiges Erscheinungsbild gegeben ist. Folge- und Wartungsanstriche entfallen. Bei der Bauweise entschieden wir uns für eine massive Konstruktion aus Kalksandstein-Mauerwerk und Stahlbeton.

Die Gebäudetechnik wurde mit einer Wärmepumpe und einem Spitzlast-Gasbrennwertkessel ausgestattet. Alle Wohnungen erhielten eine eigene Lüftung mit Wärmerückgewinnung. Durch diese Maßnahmen konnte die Energiebilanz so optimiert werden, dass der KFW-40-Standard erreicht wird.

Realisierungszeitraum: September 2017 bis August 2018