Ein Projekt der

Startseite » Projekte » Am Güterbahnhof
mvkGueter6VOSTRA30

Am Güterbahnhof

Zentrales Wohnen mit hohem Naherholungs- und Freizeitwert

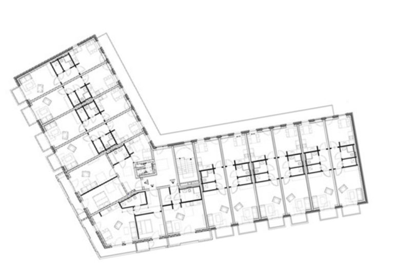
Im Stadtteil Bergedorf, am südöstlichen Rand Hamburgs, entstand auf 2.800 m² Wohnfläche ein Mehrfamilienhaus mit 52 Wohneinheiten unterschiedlicher Typologien, die sowohl Singles als auch Familien Raum zum Leben bieten.

Das Erdgeschoss verfügt über zehn Townhouse-Wohnungen, die sich über zwei Geschosse erstrecken und wie Reihenhäuser konzipiert sind. In den weiteren Geschossen befinden sich 1- bis 4-Zimmerwohnungen. Das Kellergeschoss verfügt über ausreichend Abstellflächen, darunter einen Kinderwagen- und Fahrradraum sowie eine Tiefgarage mit 22 Stellplätzen.

Das Gebäude wurde auf dem Areal der ehemaligen Möbel-Zühlke-Verkaufsräume errichtet.

Die Lage

Der Standort mit guter Anbindung an die Hamburger Innenstadt vereint alle Anforderungen an ein modernes Leben. In der näheren Umgebung befinden sich Kitas, Grund- und weiterführende Schulen sowie Krankenhäuser und die beliebte Fußgängerzone Sachsentor. Mit einem eigenen Theater, der Nähe zur Elbe und dem Bergedorfer Schloss bietet Bergedorf einen hohen Naherholungs- und Freizeitwert.

Ökologisch sinnvoll und sparsam - KFW-40 ohne Lüftungsanlage

Durch die Optimierung der Energiebilanz wurde auch bei diesem Gebäude der KFW-40-Standard erreicht – und das sogar ohne die übliche Lüftung mit Wärmerückgewinnung! Möglich wird dies durch den Anschluss an die mit regenerativer Energie betriebene Nahwärme. Um die Belüftung sicherzustellen, wurde im Bad eine Abluftanlage mit Nachströmung über die Fenster vorgesehen. Darüber hinaus handelt es sich bei der Gebäudekonstruktion um einen sparsamen und dauerhaften Massivbau aus Kalksandsteinmauerwerk und Stahlbeton. Die Fassade bildet ein Verblendmauerwerk.