pFnt03EA.jpeg

Ferienapartments in Gardin

Zentrales Wohnen mit hohem Naherholungs- und Freizeitwert

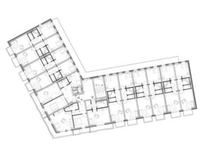
Im Stadtteil Bergedorf, am südöstlichen Rand Hamburgs, entsteht auf 2.800 m² Wohnfläche ein Mehrfamilienhaus mit 52 Wohneinheiten unterschiedlicher Typologien, die sowohl Singles als auch Familien Raum zum Leben bieten.

Das Erdgeschoss verfügt über zwei Townhouse-Wohnungen, die sich über zwei Geschosse erstrecken und wie Reihenhäuser konzipiert sind. In den weiteren Geschossen befinden sich 1 – 4-Zimmerwohnungen. Das Kellergeschoss verfügt über ausreichend Abstellflächen, darunter einen Kinderwagen- und Fahrradraum sowie eine Tiefgarage mit 20 Stellplätzen.

Das Gebäude wird auf dem Areal der ehemaligen Möbel-Zühlke-Verkaufsräume errichtet.

Ökologisch sinnvoll und sparsam - KFW-40 ohne Lüftungsanlage

Im Stadtteil Bergedorf, am südöstlichen Rand Hamburgs, entsteht auf 2.800 m² Wohnfläche ein Mehrfamilienhaus mit 52 Wohneinheiten unterschiedlicher Typologien, die sowohl Singles als auch Familien Raum zum Leben bieten.

Das Erdgeschoss verfügt über zwei Townhouse-Wohnungen, die sich über zwei Geschosse erstrecken und wie Reihenhäuser konzipiert sind. In den weiteren Geschossen befinden sich 1 – 4-Zimmerwohnungen. Das Kellergeschoss verfügt über ausreichend Abstellflächen, darunter einen Kinderwagen- und Fahrradraum sowie eine Tiefgarage mit 20 Stellplätzen.

Das Gebäude wird auf dem Areal der ehemaligen Möbel-Zühlke-Verkaufsräume errichtet.

 

 

Der Standort

Im Stadtteil Bergedorf, am südöstlichen Rand Hamburgs, entsteht auf 2.800 m² Wohnfläche ein Mehrfamilienhaus mit 52 Wohneinheiten unterschiedlicher Typologien, die sowohl Singles als auch Familien Raum zum Leben bieten.

Das Erdgeschoss verfügt über zwei Townhouse-Wohnungen, die sich über zwei Geschosse erstrecken und wie Reihenhäuser konzipiert sind. In den weiteren Geschossen befinden sich 1 – 4-Zimmerwohnungen. Das Kellergeschoss verfügt über ausreichend Abstellflächen, darunter einen Kinderwagen- und Fahrradraum sowie eine Tiefgarage mit 20 Stellplätzen.

Das Gebäude wird auf dem Areal der ehemaligen Möbel-Zühlke-Verkaufsräume errichtet.